TECHTROL
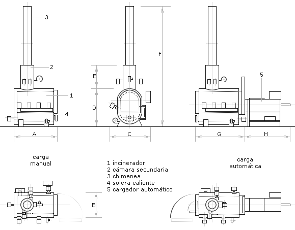
Los sistemas de incineración

pyrotec para restos
de animal - número 3/3


Pyrotec
Modelo

Capacidad

Dimensiones (m)

Diámetro
interior
de la
chimenea
(m)

Tamaño
manual
de la
puerta
de carga
(m)

Tamaño
de la
puerta de
ceniza
(m)

Tamaño
del
cargador
automático
(m³)

Kg/Hr

Termal
KCal/Hr

A

B

C

D

E

F

G

H

A200

200

445,000

3.84

2.40

3.40

2.90

1.60

1.20

3.75

4.50

0.62

1.6 x 1.6

1.6 x 1.6

1.5

A300

300

667,500

4.29

2.70

3.70

3.00

1.80

1.20

4.20

4.50

0.75

1.6 x 1.8

1.8 x 1.8

1.5

A400

400

890,000

4.80

2.70

3.70

3.10

1.80

1.40

4.71

5.00

0.88

1.8 x 1.8

1.8 x 1.8

2.5

A500

500

1,112,500

5.30

2.90

3.90

3.60

2.00

1.60

5.20

5.00

0.98

1.8 x 1.8

1.8 x 1.8

2.5

Nota :-

Las capacidades indicadas se basan en restos con un valor calorífico de 1,000 KCal/Kg.



diseño

El Pyrotec A es un incinerador moderno diseñado para quemar cuerpos enteros de animales con gran eficacia, limpia y ambientalmente segura. Basado en utilizar Pyrólisis y Solera Caliente, está especialmente recomendado para cuerpos completos de animales. Estos modelos son especialmente aplicados para Mataderos, Centros de Investigación, Crematorios de Animales y Desperdicios Orgánicos, provistos de la sofisticación necesaria de control, volumen de Cámara Secundaria, carga Manual o Automática y chimenea.

modelos

A200, A300, A400 y A500.

normas de diseño

BS3316, 1987 - Tiempo permanencia en cámara de postcombustión: - 0,5 segundos entre 800ºC y 1,000ºC.

tipo carga

Cuerpos enteros de animales - poder calorífico 1,000 KCal/Kg, densidad 700 Kg/m³ y porcentaje de humedad 85%.

construcción

Chapa de acero dulce espesor 6 mm reforzada, formando un conjunto rígido.

material refractario

Cámara primaria - material refractario calidad 1,400ºC y 115mm espesor, con 76mm de aislante de silicato de calcio. Cámara secundaria - material refractario calidad 1,600ºC y espesor 115mm, seguido por 76mm de aislante de silicato de calcio. Chimenea crematoria - 100mm de refractario denso.

combustible

Gas Natural, Gas Propano -LPG- o Gas Oíl.

quemadores

Quemadores automáticos completos con ignición eléctrónica y el control de detección de llama con todas las válvulas necesarias, los motores y el ventilador para aire de combustión continuo integral. Programador (con carga automática) para proveer condiciones óptimas de la combustión, temperaturas secundarias de la cámara y ahorro energético. Cámara inferior uno @ 200,000 Kcal/Hr. Cámara primaria - de tres a cuatro @ 200,000 KCal/Hr control Todo-Nada, dimensionado para satisfacer modelo. Cámara secundaria - dos @ 200,000 KCal/Hr control Todo-Nada, (alto/punto bajo control, carga automática) dimensionado para satisfacer modelo.

ventiladores

Para la combustión y enfriamiento se prevé el suministro de ventiladores centrífugos (carga automática) manualmente ajustados o automáticamente, que suministran aire para las boquillas estratégicamente colocadas a todo lo largo de las cámaras de combustión para asegurar condiciones óptimas completas.

pintura

Dos (2) capas de primer, seguidas de otras dos (2) capas de pintura final.

armario control

El sistema de control automático construido para IEC Standards, incorporando a controlador PLC todo el equipo automático funciona e incorpora las siguientes secuencias.

1. Precalentamiento
2. Ciclo encendido
3. Carga automática (cuando existe)
4. Apagado
5. Enfriamiento

El armario de control está acondicionado con el panel de todas las secuencias automáticas, conjuntamente con la indicación de temperatura de cámaras primarias y secundarias (carga automática). En caso de carga manual, sólo indicación de temperatura.

electricidad

El 380/440 Volt. 3 fase. 50/60Hz.

carga manual

Puerta tipo abatible horizontalmente, con contactos de seguridad y mirilla de observación.

carga automática

Empujadora horizontal accionada por cilindro oleohidráulico, conectado al ciclo automático del horno, de manera que, cuando la puerta de carga está en posición arriba, puede avanzar. Tiene todos sus movimientos programados para obtener la máxima producción. Alrededor de la sección de carga se colocan boquillas para agua, que, si es necesario, provocan el enfriamiento de la cámara.

puerta de extracción de ceniza

Localizada para dar acceso para la extracción de ceniza de la cámara de combustión principal con puerta recubierta de refractario con manilla de apriete; también están previstas para las cámaras secundarias otras tantas puertas de acceso.

sistema de salida de humos

Para mejorar la combustión se puede introducir aire a presión, que permite una mejor salida de los humos por la chimenea.

chimenea

Construida según Normas BS4076, de acero dulce y colocada después de la cámara de post-combustión.

cableado

El cableado eléctrico será con protección de PVC y sobre bandejas protegidas.

tubería de combustible

La tubería de combustible entre los quemadores será completada terminando en un punto de suministro para todo el incinerador.




copyright © 2003, Tectrol SRL.
url : www.techtrol.net