TECHTROL
Los sistemas de incineración

pyrotec para restos de
animal y patológicos - número 3/2


Pyrotec
Modelo

Capacidad

Dimensiones (m)

Tamaño
de puerta
para
cargar
(m)

Tamaño
de la
puerta de
ceniza
(m)

Tamaño
del
cargador
automático
(m³)

Kg/Hr

Termal
KCal/Hr

A

B

C

D

E

F

AP150

150

333,750

3.40

3.50

4.40

4.35

2.50

5.40

0.75 x 0.75

0.70 x 0.70

1.5

AP200

200

445,000

3.95

3.50

4.40

4.35

2.50

5.40

0.75 x 0.75

0.70 x 0.70

1.5

AP250

250

556,250

4.20

3.90

4.50

5.00

3.00

5.50

0.75 x 0.75

0.80 x 0.80

2.0/4.0

AP300

300

667,500

4.56

3.90

4.80

5.00

3.00

5.80

0.75 x 0.75

0.80 x 0.80

2.0/4.0

AP400

400

890,000

5.15

4.30

5.00

5.00

3.00

6.00

0.75 x 0.75

0.80 x 0.80

2.0/4.0

AP500

500

1,112,500

5.53

4.55

5.20

5.00

3.50

6.20

0.75 x 0.75

0.80 x 0.80

2.0/4.0

Nota :-

Las capacidades indicadas se basan en restos con un valor calorífico de 1,000 KCal/Kg.



diseño

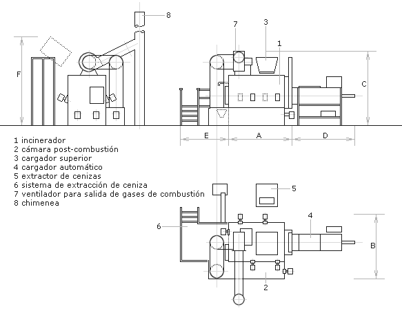
El Pyrotec AP es un incinerador moderno diseñado para quemar desperdicio animal y patológico en una manera limpia y ambientalmente segura. Se coloca un equipo de combustión dentro de una cámara secundaria bajo la chimenea crematoria. El Incinerador Pyrotec AP Solera Caliente es ideal para la eliminación de animales, restos patológicos y húmedos. Adecuado para crematoria animal, centros veterinarios, laboratorios de investigación, mataderos, establecimientos agrícolas y hospitales. Está acondicionado con la sofisticación necesaria de control, volumen secundario de la cámara, carga manual o automática y la chimenea.

modelos

AP150, AP200, AP250, AP300, AP400 y AP500.

normas de diseño

BS3316, 1987 - Acta Protección Medio Ambiental de Gran Bretaña, 1991 - PG5/3 o cualquier Normativa Local. Tiempo permanencia en cámara de postcombustión: - 2 segundos entre 800ºC y 1,000ºC.

tipo carga

Cuerpos de animales - valor calorífico 1,000 KCal/Kg, contenido de humedad 85% - densidad de la masa 700 Kg/m³. Restos tipo 4 - el valor calorífico 555 KCal/Kg, contenido de humedad 85% - densidad de la masa 700 Kg/m³. Restos tipo 3 - valor calorífico 1,388 KCal/Kg, contenido de humedad 70% - densidad de la masa 500 Kg/m³.

construcción

Chapa de acero dulce espesor 6 mm reforzada, formando un conjunto rígido.

material refractario

Cámara primaria - material refractario calidad 1,400ºC y 115/150mm espesor, con 76/150mm de aislante de silicato de calcio. Cámara secundaria - material refractario calidad 1,600ºC y espesor 115/150mm, seguido por 76/150mm de aislante de silicato de calcio. Solera cámara primaria con hormigón refractario Alta resistencia espesor 150mm. Chimenea crematoria - 100mm de refractario denso.

combustible

Gas Natural, Gas Propano -LPG- o Gas Oíl.

quemadores

Quemadores automáticos completos con ignición eléctrónica y el control de detección de llama con todas las válvulas necesarias, los motores y el ventilador para aire de combustión continuo integral. Programador (con carga automática) para proveer condiciones óptimas de la combustión, temperaturas secundarias de la cámara y ahorro energético. Cámara primaria - de tres a cuatro @ 100,000-200,000 KCal/Hr control Todo-Nada, dimensionado para satisfacer modelo. Cámara secundaria - dos a cuatro @ 200,000 KCal/Hr control Todo-Nada, (alto/punto bajo control, carga automática) dimensionado para satisfacer modelo.

ventiladores

Para la combustión y enfriamiento se prevé el suministro de ventiladores centrífugos (carga automática) manualmente ajustados o automáticamente, que suministran aire para las boquillas estratégicamente colocadas a todo lo largo de las cámaras de combustión para asegurar condiciones óptimas completas.

pintura

Dos (2) capas de primer, seguidas de otras dos (2) capas de pintura final.

armario control

El sistema de control automático construido para IEC Standards, incorporando a controlador PLC todo el equipo automático funciona e incorpora las siguientes secuencias.

1. Precalentamiento
2. Ciclo encendido
3. Carga automática (cuando existe)
4. Apagado
5. Enfriamiento

El armario de control está acondicionado con el panel de todas las secuencias automáticas, conjuntamente con la indicación de temperatura de cámaras primarias y secundarias (carga automática). En caso de carga manual, sólo indicación de temperatura.

control ambiental

Monitores para Partículas Sólidas, Monóxido de Carbono y Oxígeno, con registro sobre seis (6) puntos.

electricidad

El 380/440 Volt. 3 fase. 50/60Hz.

carga automática

Empujadora horizontal accionada por cilindro oleohidráulico, conectado al ciclo automático del horno, de manera que, cuando la puerta de carga está en posición arriba, puede avanzar. Tiene todos sus movimientos programados para obtener la máxima producción. Alrededor de la sección de carga se colocan boquillas para agua, que, si es necesario, provocan el enfriamiento de la cámara.

cargador superior

La puerta de carga en la parta superior traslación horizontal, que permite introducir la carga en la cámara primaria, incluso en el caso de material con elevado grado de humedad.

puerta de extracción de ceniza

Localizada para dar acceso para la extracción de ceniza de la cámara de combustión principal con puerta recubierta de refractario con manilla de apriete; también están previstas para las cámaras secundarias otras tantas puertas de acceso.

sistema de salida de humos

Para mejorar la combustión se puede introducir aire a presión, que permite una mejor salida de los humos por la chimenea.

extracción de cenizas

Se puede prever el suministro de un sistema automático para la extracción de las cenizas, de manera que éstas se filtran y pulverizan en un molino, si es que se desea que el producto final esté pulverizado.

chimenea

Construida según Normas BS4076, de acero dulce y colocada después de la cámara de post-combustión.

cableado

El cableado eléctrico será con protección de PVC y sobre bandejas protegidas.

tubería de combustible

La tubería de combustible entre los quemadores será completada terminando en un punto de suministro para todo el incinerador.




copyright © 2003, Tectrol SRL.
url : www.techtrol.net